Rif. NB25021

500.000 €

Attico Nuovo a pochi passi dal centro

2
2
110 m2
2024

L' Agenzia IRIS propone in vendita Attico di nuova costruzione, a pochi minuti dal centro e dai principali servizi cittadini.

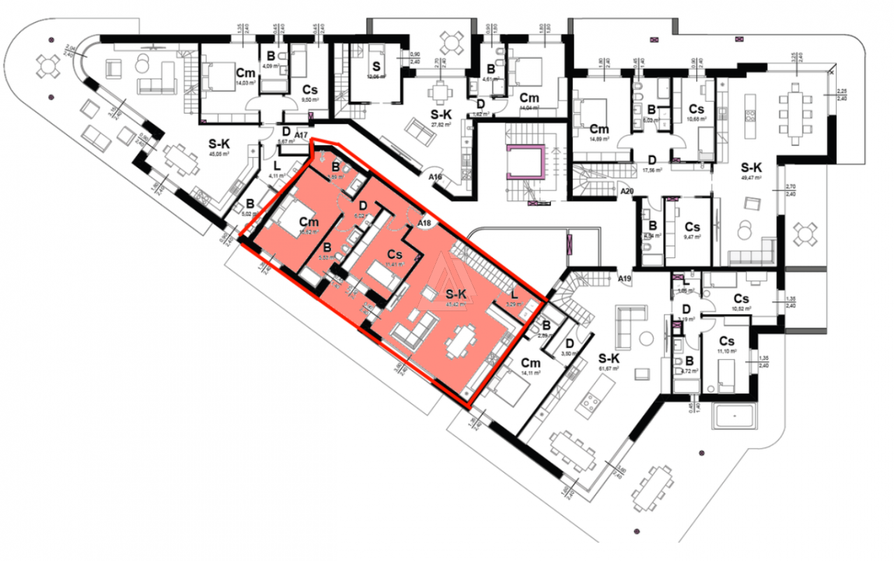
L'immobile si contraddistingue per i suoi spazi e per la sua luminosità, si estende per una superfice commerciale di 110mq.; la zona giorno è composta da un luminoso soggiorno integrato dalla cucina, una grande vetrata fa accedere al terrazzo abitabile.
Completa la zona un bagno di servizio che può essere destinato a lavanderia.

La zona notte è composta da due spaziose camere da letto: un elegante camera matrimoniale con bagno privato e una camera singola.

L'immobile presenta al piano sovrastante, unico nel suo genere, un terrazzo verde panoramico ottimo per cene e attività all'aperto.

L'appartamento dispone altresì di un garage privato al piano interrato.

L'indirizzo presente nel seguente annuncio non identifica l'esatta ubicazione dell'immobile, al fine di garantire la privacy e la riservatezza del venditore.

Planimetrie

Attico Nuovo a pochi passi dal centro 1 Attico Nuovo a pochi passi dal centro 2 Attico Nuovo a pochi passi dal centro 3

Immagini

Ambienti

Soggiorno
Cucina
Terrazzi 1
Garage 1
Lavanderia

Livelli & comfort

Livelli Ultimo piano
Aria condizionata
Pannelli fotovoltaici
Riscaldamento autonomo
Riscaldamento a pavimento
Riscaldamento termopompa
Porta blindata
Predisposizione allarme

classe energetica

2
2
A1
0.00
n/d

MAPPA