Rif. NB25022

650.000 €

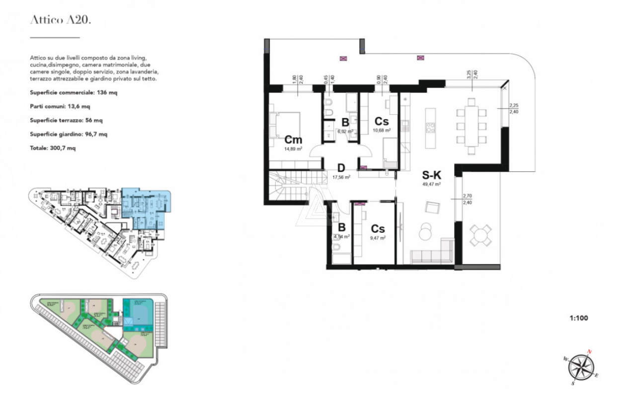
Attico Tricamere Nuovo

3
2
136 m2
2024

L' Agenzia IRIS propone in vendita Attico di nuova costruzione, a pochi minuti dal centro e dai principali servizi cittadini.

L'immobile si contraddistingue per i suoi spazi e per la sua luminosità, si estende per una superfice commerciale di 136mq.; la zona giorno è composta da un luminoso soggiorno integrato dalla cucina, una grande vetrata fa accedere al terrazzo abitabile con vista a est.

La zona notte è composta da tre spaziose camere da letto: un elegante camera matrimoniale e due camere singole di generosa metratura.

L'immobile presenta al piano sovrastante, unico nel suo genere, un terrazzo verde panoramico in parte piastrellato e in parte coperto da un tappeto verde, uno spazio riservato adatto a cene o pranzi all'aperto in totale riservatezza.

L'appartamento dispone altresì di un garage privato al piano interrato.

L'indirizzo presente nel seguente annuncio non identifica l'esatta ubicazione dell'immobile, al fine di garantire la privacy e la riservatezza del venditore.

Immagini

Ambienti

Soggiorno
Cucina
Terrazzi 2
Garage 1
Lavanderia

Livelli & comfort

Livelli Ultimo piano
Aria condizionata
Pannelli fotovoltaici
Riscaldamento autonomo
Riscaldamento a pavimento
Riscaldamento termopompa
Porta blindata
Predisposizione allarme

classe energetica

2
2
A1
0.00
n/d

MAPPA